Exklusives Zweifamilienhaus mit hochwertiger Ausstattung und flexibler Nutzung


































- Objektart
- Haus
- Objekttyp
- Zweifamilienhaus
- Vermarktungsart
- Kauf
- PLZ
- 71543
- Ort
- Wüstenrot
- ImmoNr
- 2346
- Wohnfläche
- ca. 270 m²
- Grundstücksgröße
- ca. 1.378 m²
- Nutzfläche
- ca. 167 m²
- Anzahl Zimmer
- 8
- Anzahl Badezimmer
- 3
- Kaufpreis
- 1.022.000,00 €
- Außen-Provision
- 3,99 % inkl. MwSt. vom Kaufpreis. Die Provision ist verdient und mit notarieller Beurkundung fällig.
Beschreibung
Modernes Design, hoher Wohnkomfort und Energieeffizienz vereinen sich in diesem Zweifamilienhaus in Massivbauweise aus dem Jahr 2021. Die Immobilie beeindruckt durch ihre hochwertige Ausstattung, durchdachte Raumaufteilung und ein flexibles Nutzungskonzept.Mit zwei separaten Wohneinheiten, die sich bei Bedarf miteinander verbinden lassen, eignet sich das Haus ideal für mehrgenerationelles Wohnen, Wohnen und Arbeiten unter einem Dach oder als großzügiges Einfamilienhaus.
Auf einer Wohnfläche von ca. 270 m² bietet das Haus komfortables Wohnen auf hohem Niveau sowie großzügige Nutzflächen im Untergeschoss und auf dem ausgebauten Dachboden.
Beide Wohneinheiten sind über ein zentral gelegenes, offen gestaltetes Treppenhaus erreichbar, das bereits im Eingangsbereich einen hellen und repräsentativen Eindruck vermittelt.
Das ca. 1.378 m² große Grundstück liegt in ruhiger Wohnlage und überzeugt durch einen weitläufigen Außenbereich mit mehreren Terrassen, gepflegten Gartenflächen und einer großzügigen Hofeinfahrt mit Platz für zahlreiche Fahrzeuge. Zwei Doppelgaragen mit elektrischen Sektionaltoren, eine Gartenhütte sowie eine stilvolle Außenbeleuchtung rund ums Haus unterstreichen den anspruchsvollen Gesamteindruck.
Zur gehobenen Ausstattung zählen unter anderem eine Wärmepumpe, Fußbodenheizung mit Einzelraumsteuerung, elektrische Rollläden, eine zentrale Belüftungsanlage, moderne Einbauküchen, elegante Bäder sowie jeweils ein Kamin pro Wohneinheit. Das vollständig umzäunte Grundstück bietet Privatsphäre, Sicherheit und ein repräsentatives Wohnambiente.
Hinweis: Einige Bilder wurden zum Schutz der Privatsphäre mittels KI bearbeitet.
Lage
Das angebotene Zweifamilienhaus befindet sich in der charmanten Gemeinde Wüstenrot, eingebettet in die malerische Landschaft des Naturparks Schwäbisch-Fränkischer Wald. Diese begehrte Region Baden-Württembergs bietet eine perfekte Balance zwischen erholsamer Naturnähe und eåiner gut ausgebauten Infrastruktur. Die unmittelbare Umgebung des Hauses zeichnet sich durch eine ruhige Wohnatmosphäre aus, die vor allem Familien und Naturliebhaber anspricht.Wüstenrot ist bekannt für seine ausgezeichneten Freizeit- und Erholungsmöglichkeiten. Zahlreiche Wander- und Radwege sowie idyllische Waldgebiete laden zu ausgiebigen Erkundungstouren in der freien Natur ein. Gleichzeitig profitieren die Bewohner von einer guten Anbindung an öffentliche Verkehrsmittel, die eine bequeme Erreichbarkeit der umliegenden Städte gewährleisten.
Im nahen Umkreis finden sich diverse Einkaufsmöglichkeiten, Schulen und Kindergärten sowie ein breites Angebot an Gastronomie und kulturellen Einrichtungen. Dank der harmonischen Kombination aus Naturverbundenheit und urbaner Nähe ist diese Lage besonders attraktiv für alle, die Wert auf eine hohe Lebensqualität legen.
Energieausweis
- Baujahr
- 2021
- Endenergiebedarf
- 25,9 kWh/(m²a)
- Energieausweis
- Bedarfsausweis
- Energieausweis gültig bis
- 18.08.2030
- Energieeffizienzklasse
- A+
- wesentlicher Energieträger
- Luft/Wasser Wärmepumpe
Ausstattung
- Zweifamilienhaus mit zwei separaten Wohneinheiten- Möglichkeit zur Verbindung beider Wohneinheiten
- Massivbauweise mit Fassade in Steinoptik
- Baujahr 2021
- Grundstücksgröße ca. 1.378 m²
- Wohnfläche: ca. 270 m²
- Nutzfläche: ca. 167 m²
- Wärmepumpe (Luft/Wasser)
- 3-fach verglaste Kunststofffenster
- Fußbodenheizung mit Einzelraumsteuerung
- Kaminofen in beiden Wohneinheiten
- Zentrale Belüftungsanlage (auch teilweise im Keller)
- Elektrische Rollläden und Einbauspots
- Gegensprechanlage mit Bild
- Zahlreiche Steckdosen und Netzwerkanschlüsse
- Moderne, voll ausgestattete Küchen (eine mit Kochinsel und Granitarbeitsplatte)
- Hochwertige Bäder mit bodengleichen Regenfallduschen
- Edle Materialien: großformatige spanische Fliesen (120 × 60 cm), Aqua-Laminat, venezianischer Stuck sowie besonderer, atmungsaktiver Kalkputz
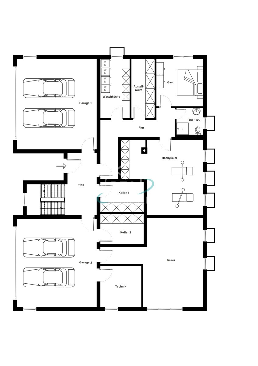
- Großzügiger Kellerbereich mit vielfältigen Nutzungsmöglichkeiten
- Dachboden mit Zugang von beiden Wohneinheiten
- Zwei große Doppelgaragen mit elektrischen Hörmann-Sektionaltoren
- Großzügige Hofeinfahrt mit ca. 10 Außenstellplätzen
- Drei Terrassen (Süd- und Nordausrichtung)
- Gepflegte Gartenflächen mit Gartenhütte
- Stilvolle Außenbeleuchtung rund ums Haus
- Komplett umzäuntes Grundstück
- Hanglage mit mehreren ebenen Gartenbereichen
